Jaakko Laitinen
Vuokraus ja myyntipalvelu: 0400 805 333 | info@talliosake.fi

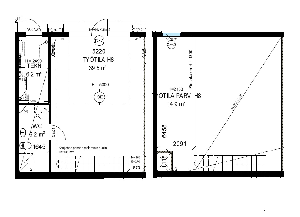
Korkea ja monipuolinen työtila Tikkurilassa
Tämä noin 61 m²:n kokoinen kaksitasoinen työtila tarjoaa monipuoliset puitteet yritystoimintaan tai vaativaan harrastamiseen. Alakerran jopa 5 metrin korkeus mahdollistaa tehokkaan tilankäytön myös pystysuunnassa, ja selkeä pohjaratkaisu tekee tilasta helposti muunneltavan erilaisiin tarpeisiin.
Alakerran 46 m² työtila muodostaa toimivan ja avaran kokonaisuuden, jota täydentää yläkerran 15 m² parvi. Parvi soveltuu esimerkiksi toimistoksi, työskentelytilaksi tai varastokäyttöön. Parven korkeus on 2,15 m, ja kulku on toteutettu tukevilla sisäportailla.
Tilassa on erillinen WC (6,2 m²), mikä lisää käyttömukavuutta ja tekee tilasta soveltuvan myös päivittäiseen ja kokopäiväiseen käyttöön. Tila soveltuu erinomaisesti esimerkiksi työtilaksi, yrityksen kalusto- tai työtarvikevarastoksi tai aktiiviharrastajan käyttöön.
Tikkurilan Talliosake H sijaitsee Vantaalla keskeisellä ja helposti saavutettavalla alueella, hyvien liikenneyhteyksien varrella. Tikkurilan palvelut sekä pääväylät ovat nopeasti saavutettavissa, mikä tukee sujuvaa arkea ja logistiikkaa.
Kohteessa on myös muita Talliosake-tiloja eri käyttötarkoituksiin.
📩 Tilaa hinnasto ja kohde-esite täyttämällä ”Ota yhteyttä” -lomake.

Yheistyössä Osuuspankin kanssa tarjoamme joustavan rahoituksen – hanki Talliosake omaksi jopa ilman käsirahaa!
Katso, miten muut ovat toteuttaneet haaveensa Talliosakkeen avulla.

“Mun mielestä Talliosake on toiminut äärimmäisen hyvin. Tila on tarpeeksi pitkä, tarpeeksi leveä. Saadaan pojan lätkäkamat kuivumaan tilan toiselle puolelle, autokamat toiselle puolelle ja autokin mahtuu sisään.”
Kimmo Maijala

“Karistonkadun Talliosake on monikäyttöinen ja hyvällä paikalla. Tavaroiden roudaaminen ja varastointi sujuu hienosti. Tallissa toimii myös yrityksen toimisto. Paikka on hyvä ja vuokra on edullisempi. Ollaan oltu tosi tyytyväisiä. “
Mika, Eventhits Oy, Eventpro Oy
Jätä yhteystietosi, niin palaamme sinulle asiaan!

”Talliosakkeessa vuokrahinta on kohtuullisempi kuin monessa liiketilassa. Se on ollut itselleni yksinyrittäjänä aika merkittävä juttu, että on kohtuullinen kuukausierä. Se on iso plussa. Korkeat, avarat tilat ovat toimivia moneen käyttöön ja sopivat aika monenlaiseen yritystoimintaan.”
Mari Okkonen
MO Keramiikka, Espoo
“Talliosake on toiminut äärimmäisen hyvin. Tila on tarpeeksi pitkä, tarpeeksi leveä. Saadaan pojan lätkäkamat kuivumaan tilan toiselle puolelle, autokamat toiselle puolelle ja autokin mahtuu sisään.”
Kimmo Maijala
JM- Express Oy, Vantaa
”Tila on osoittautunut todella hyvälaatuiseksi ja siellä on meille kaikki riittävä. On wc, vesipiste, sähköt ja korkeutta on riittävästi. En voi muuta kuin suositella”
Mikko Ojala
Voit käyttää vuokratilaa esimerkiksi varastointiin, harrastustoimintaan, työntekoon ja yritysten toimitilaksi. Talliosakkeen tiloja voi vuokrata erilaisiin käyttötarkoituksiin. Yleisimmät käyttötarkoitukset ovat tavaroiden pitkäaikainen varastointi ja säilytys, autojen ja veneiden talvisäilytys, harrastustoiminta. Lisäksi Talliosake tarjoaa erinomaisia tiloja yritystoimintaan.
Talliosakkeen vuokratiloissa pääset heti toimimaan laadukkaassa tilassa, sillä erinomainen varustelu, saavutettavuus, turvallisuus ja käytännöllisyys mahdollistavat monipuolisen toiminnan. Talliosakkeessa on peruslämpö, riittävä valaistus, moottoroitu nosto-ovi erillisellä sisäänkäynnillä sekä kestävä epoksilattia. Sijainti maan tasolla helpottaa tavaroiden siirtelyä merkittävästi. Kun Talliin voi ajaa sisään, tavaroiden lastaaminen ja purkaminen on miellyttävämpää haastavilla keleillä.
Talliosakkeen huoltotilat soveltuvat erityisesti ammattimaiseen autohuoltoon ja tekniseen työhön. Tilat on rakennettu kestämään kosteutta ja niissä on vaatimusten mukainen ilmanvaihto. Lattialämmitys on huoltotiloissa vakiona, mikä parantaa käyttömukavuutta.
Käyttötarve, sijainti, koko, varustelu ja sopimusehdot ovat tärkeimmät huomioitavat seikat vuokra-Tallia valittaessa. Sijainnin tulee olla helposti saavutettavissa ja lähellä päivittäisiä kulkureittejä. Koko ja tilatyyppi kannattaa valita käyttötarkoituksen mukaan. Varustelussa kannattaa huomioda se, että Talliosakkeessa on aina valmiina sähköt, lämmitys, valaistus, toimiva kiinteistönhuolto ja turvalliset olosuhteet työskentelyyn.
Useissa tiloissa on valmiina WC käsienpesualtaineen. Kaikkiin tiloihin on tehty vesihanalle tarvittavat putkityöt valmiiksi. Kaikissa tiloissa on vähintään WC:n rakentamiseen tarvittavat viemäröinti- ja vesivaraukset toteutettu jo rakennusvaiheessa.
Kyllä. Talliosakkeen varastotilat, toimitilat, työtilat, liiketilat, tuotantotilat ja pesu- ja huoltotilat soveltuvat erinomaisesti yritystoimintaan. Talliosake on kustannustehokas ja joustava ratkaisu monenlaisille yrityksille.
Useimmat Talliosakkeet sijaitsevat vilkasliikenteisten kulkuväylien varrella. Siten pienemmilläkin yrityksillä on mahdollisuus päästä hyville sijainneille ja saada runsaasti näkyvyyttä.
Talliosake-tilat ovat laadukkaita ja ne ovat hyvin varusteltuja. Vakiovarusteisiin kuuluu valaistus, sähkö, vesipiste ja WC-varaus. Useissa varastotioloissa on myös valmiina parvi sekä WC. Tavallinen varastotila on usein kylmä ja niukasti varusteltu. Lisäksi Talliosakkeisiin on saatavilla lisävarusteita ja muunneltavuutta, mikä tekee niistä huomattavasti monikäyttöisempiä kuin perinteiset varastohallit.
Talliosakkeet on rakennettu erinomaisille sijainneille. Kohteet ovat sujuvien kulkuväylien varrella ja kaupunkikeskittymien lähellä. Siten palvelut ovat helposti saavutettavissa.
Kyllä! Talliosake soveltuu erinomaisesti yrityskäyttöön, sillä Talliosakkeen tilat on suunniteltu erilaisiin käyttötarkoituksiin. Voit katsoa vapaita vuokratiloja täältä!
Kyllä! Talliosake on toimialansa isoin toimija, ja kuuluu korkeimpaan mahdolliseen luottoluokkaan, eli AAA-luottoluokkaan. Sertifikaatin on myöntänyt Dun & Bradstreet (D&B), joka on tunnettu ja yleisesti luotettava taho yritysluottotietojen ja luottoluokitusten tarjoajana.
Tiloja on saatavilla jo 120 sijainnilla 30 paikkakunnalla sekä Suomessa että Ruotsissa. Suomessa Talliosakkeita on joka puolella maata: Helsingissä, Vantaalla, Espoossa, Keravalla, Tuusulassa, Kauniaisissa, Kirkkonummella, Riihimäellä, Sipoossa, Porvoossa, Järvenpäässä, Hämeenlinnassa, Turussa, Kaarinassa, Lahdessa, Lohjalla, Tampereella, Lempäälässä, Valkeakoskella, Ylöjärvellä, Pirkkalassa, Kangasalla, Nokialla, Jyväskylässä, Oulussa, Kuopiossa ja Raumalla.
