Hannu Peltonen
Vuokraus ja myyntipalvelu: 0400 805 333 | info@talliosake.fi

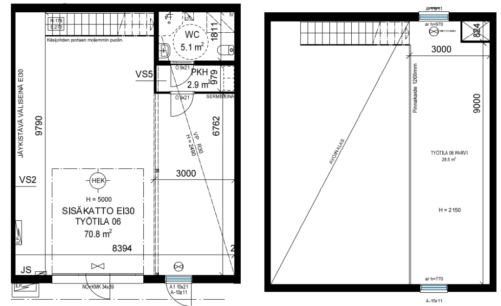
Työtila 6 on 107 m²:n kokoinen korkea työtila, joka tarjoaa erinomaiset puitteet kokopäiväiseen työskentelyyn, yritystoimintaan tai vaativaan harrastekäyttöön Kivistön Talliosake 3 -kohteessa Vantaalla. Tilan tilakorkeus on 5 metriä, mikä tuo avaruutta ja mahdollistaa tehokkaan tilankäytön monenlaisiin tarpeisiin.
Tilassa on tilava parvi (28,5 m²), joka soveltuu hyvin esimerkiksi varastointiin, toimistokäyttöön tai muuhun tukikäyttöön. Parven tilakorkeus on noin 2,15 m, ja sinne kuljetaan sisäportaita pitkin. Tämä ratkaisu lisää tilan käytettävyyttä ilman, että varsinainen työtila kärsii.
Työtilaan kuuluu erillinen wc (5,1 m²) sekä pukuhuone (2,9 m²), mikä tekee tilasta soveltuvan myös kokopäiväiseen työskentelyyn. Selkeä ja avoin pohjaratkaisu tukee monenlaisia käyttötarkoituksia, kuten työ- ja toimistotilaa, yrityksen tukikohtaa, verkkokaupan toimintatilaa tai aktiiviharrastajan käyttöä.
Kivistön Talliosake 3 sijaitsee huippupaikalla aivan moottoritien E12 ja Kehä III:n läheisyydessä, mikä takaa erinomaiset kulkuyhteydet ja hyvän saavutettavuuden. Kohde sijaitsee omalla tontilla ja tarjoaa modernit, laadukkaat puitteet monenlaiseen käyttöön. Ennakkomarkkinoinnissa – arvioitu valmistuminen kesällä 2026.
📩 Tilaa hinnasto ja kohde-esite täyttämällä ”Ota yhteyttä” -lomake.

Yhteistyössä Osuuspankin kanssa tarjoamme joustavan rahoituksen – hanki Talliosake omaksi jopa ilman käsirahaa!
Katso, miten muut ovat toteuttaneet haaveensa Talliosakkeen avulla.

“Talliosakkeessa toteutin vihdoin pitkäaikaisen unelmani omasta puuverstaasta. Nyt minulla on tila, jossa voin rauhassa rekantaa ja jättää projektit levälleen – ilman että kotiin kertyy sahajauhoa.
Matti M. Harrastaja, puutyöpaja
Tämä on tehnyt arjestani paljon mielekkäämpää.”
Jätä yhteystietosi, niin palaamme sinulle asiaan!
leadoo form

”Pitkä kokemus näkyy prosessin sujuvuutena, laadun tasaisuutena ja läpinäkyvänä toimintana. Olemme kehittäneet monikäyttötilojen standardeja yhdessä asiakkaiden kanssa.”
Anssi Asiakinen
Verkkokauppamyyjä, Keuruu
”Pitkä kokemus näkyy prosessin sujuvuutena, laadun tasaisuutena ja läpinäkyvänä toimintana. Olemme kehittäneet monikäyttötilojen standardeja yhdessä asiakkaiden kanssa.”
Anssi Asiakinen
Verkkokauppamyyjä, Keuruu
”Pitkä kokemus näkyy prosessin sujuvuutena, laadun tasaisuutena ja läpinäkyvänä toimintana. Olemme kehittäneet monikäyttötilojen standardeja yhdessä asiakkaiden kanssa.”
Anssi Asiakinen
Verkkokauppamyyjä, Keuruu
Kyllä voi! Talliosake on vaivaton ja erittäin kannattava sijoituskohde. Kiinteistöjen ylläpito on helppoa ja edullista, myös hoitokustannukset ovat maltilliset. Sijoittamisen alkuun pääset ottamalla yhteyttä sinua kiinnostavan kohteen aluemyyntipäällikköön.
Talliosakkeen huoltotilat soveltuvat erityisesti ammattimaiseen autohuoltoon ja tekniseen työhön. Tilat on rakennettu kestämään kosteutta ja niissä on vaatimusten mukainen ilmanvaihto. Lattialämmitys on huoltotiloissa vakiona, mikä parantaa käyttömukavuutta.
Useissa tiloissa on valmiina WC käsienpesualtaineen. Kaikkiin tiloihin on tehty vesihanalle tarvittavat putkityöt valmiiksi. Kaikissa tiloissa on vähintään WC:n rakentamiseen tarvittavat viemäröinti- ja vesivaraukset toteutettu jo rakennusvaiheessa.
Kyllä. Talliosakkeen varastotilat, toimitilat, työtilat, liiketilat, tuotantotilat ja pesu- ja huoltotilat soveltuvat erinomaisesti yritystoimintaan. Talliosake on kustannustehokas ja joustava ratkaisu monenlaisille yrityksille.
Useimmat Talliosakkeet sijaitsevat vilkasliikenteisten kulkuväylien varrella. Siten pienemmilläkin yrityksillä on mahdollisuus päästä hyville sijainneille ja saada runsaasti näkyvyyttä.
Talliosake-tilat ovat laadukkaita ja ne ovat hyvin varusteltuja. Vakiovarusteisiin kuuluu valaistus, sähkö, vesipiste ja WC-varaus. Useissa varastotioloissa on myös valmiina parvi sekä WC. Tavallinen varastotila on usein kylmä ja niukasti varusteltu. Lisäksi Talliosakkeisiin on saatavilla lisävarusteita ja muunneltavuutta, mikä tekee niistä huomattavasti monikäyttöisempiä kuin perinteiset varastohallit.
Talliosakkeet on rakennettu erinomaisille sijainneille. Kohteet ovat sujuvien kulkuväylien varrella ja kaupunkikeskittymien lähellä. Siten palvelut ovat helposti saavutettavissa.
Kyllä! Talliosake on toimialansa isoin toimija, ja kuuluu korkeimpaan mahdolliseen luottoluokkaan, eli AAA-luottoluokkaan. Sertifikaatin on myöntänyt Dun & Bradstreet (D&B), joka on tunnettu ja yleisesti luotettava taho yritysluottotietojen ja luottoluokitusten tarjoajana.
Talliosakkeen hinta riippuu siitä, millaisesta Talliosake-tilasta on kyse. Koska Talliosakkeita on jo lähes 6500 on selvää, että yhtä hintaa on mahdoton antaa.
Tiloja on saatavilla jo 120 sijainnilla 30 paikkakunnalla sekä Suomessa että Ruotsissa. Suomessa Talliosakkeita on joka puolella maata: Helsingissä, Vantaalla, Espoossa, Keravalla, Tuusulassa, Kauniaisissa, Kirkkonummella, Riihimäellä, Sipoossa, Porvoossa, Järvenpäässä, Hämeenlinnassa, Turussa, Kaarinassa, Lahdessa, Lohjalla, Tampereella, Lempäälässä, Valkeakoskella, Ylöjärvellä, Pirkkalassa, Kangasalla, Nokialla, Jyväskylässä, Oulussa, Kuopiossa ja Raumalla.
Arvonlisäveron palautusmahdollisuus syntyy, kun rakennuttaja, eli Talliosake maksaa rakentamisen aikaisista kuluista alvia. Oman Talliosakkeen ostaneella osakkaalla on mahdollisuus hakea palautuksena rakennusaikaista alvia, mikäli tilaa käytetään valmistumisen jälkeen arvonlisäverovelvollisessa käytössä. Palautusosan suuruus määräytyy tilakohtaisesti, todellisten rakentamisen aikana tehtyjen alvillisten hankintojen mukaan.
Tee ensin tavaroiden luettelo ja ryhmittele ne koon mukaan. Mittaa suurimmat esineet ja laske niiden vaatima lattia-ala. Muista jättää tilaa kävelylle ja tavaroiden käsittelylle, noin 30–40 % kokonaistilasta tulisi varata kulkuväylille. Joskus tilaa voi olla vaikea hahmottaa. Myyjämme auttavat sinua mielellään.
